Kęstučio g., Žvėrynas

Kaina

3 120 Eur

Plotas

207.00 m²

Pastatyta (m.)

2005

Šildymas

centrinis kolektorinis

Gatvė

Kęstučio g.

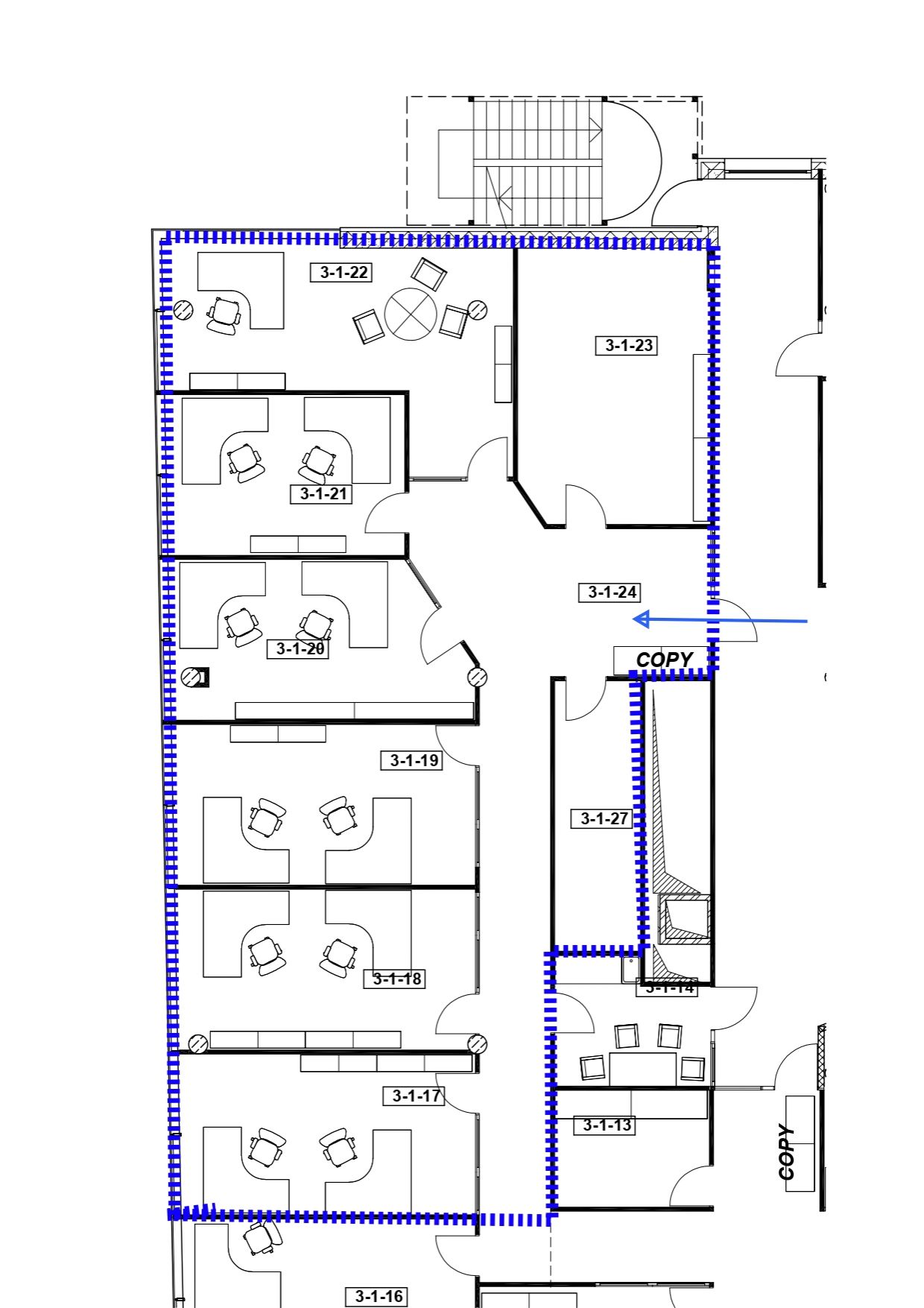
Nuomojamos jaukios ir šviesios patapos „Marenta“ verslo centre .

- Nuomojamos jaukios ir šviesios patapos „Marenta“ verslo centre – 250 kv. m., su plėtros galimybe.
- Patalpos yra antrame aukšte, patalpas galime skaidyti į mažesnius plotus (pvz. 151 kv. m.).
- Biuras yra pilnai įrengtas, neseniai atnaujintas, yra virtuvėlė bei išėjimas į privatų balkoną.
- Patalpos yra puikiai matomos, lengvai randamos ir pasiekiamos.
- Galimas greitas įsikėlimas.

Verslo centro išskirtinumas

- Modernaus eksterjero ir interjero, patogaus išplanavimo patalpos, erdvūs balkonai, naujausios technologijos - ryšio bei kompiuteriniai tinklai, šviesolaidinis internetas, vaizdo stebėjimo įranga, modernios vėdinimo, oro kondicionavimo, apsaugos bei priešgaisrinės saugos sistemos.
- Visą parą nuomojamas patalpas prižiūri saugos tarnybos personalas.
- Nuomininkų ir jų klientų patogumui įrengtas liftas.
- Patalpų įrengimui naudojamos modulinių pertvarų sistemos, todėl nuomojamos patalpos pasižymi laisvu išplanavimu, leidžiančiu patiems pasirinkti norimą plano struktūrą.

Vieta mieste

- Pastatas yra patogioje vietoje - Žvėryne, kur gausu įvairių prekių ir paslaugų vietų, mokymosi ir medicinos įstaigų, kultūros vietų, valstybinių institucijų, prekybos centrų, kt.
- Patogus susisiekimas - iš verslo centro galima pasiekti įvairias miesto vietas patogiai ir greitai. Per 20 minučių privačiu transportu galima pasiekti Vilniaus oro uostą, per 15 minučių - geležinkelio ir autobusų stotys. Aplink verslo centrą yra iki penkių viešojo transporto stotelių

Vieta mieste

Egidijus Osetrovas

Prestižinio būsto brokeris

+370 673 54871

egidijus@rebaltic.lt

    This site is registered on wpml.org as a development site. Switch to a production site key to remove this banner.